Arkitektforslag til dit nye 1-plans hus
Et plans huset har sine rødder i 60’erne og 70’erne, hvor Jely Huse var en del af den store parcelhusopblomstring – og mange af disse parcelhuse blev bygget i ét plan. Behovene hos familierne dengang er faktisk ikke ulig de behov, som mange børnefamilier har i dag.
Huset skal være praktisk og funktionelt for en børnefamilie, og det gør hverdagen lettere at have børneværelserne tæt på. Derudover vil de fleste aktive børnefamilier gerne være sammen, når de endelig er hjemme – og det er mere ligetil, når rummene ikke fordeler sig på to etager. Selvom der ikke er den store forskel i kvadratmeterprisen for et hus med ét plan og et hus med flere plan, så bliver kvadratmeterne i et 1-plans hus imidlertid mere effektivt udnyttet. Man sparer nemlig kvadratmeterne, som bliver brugt til trappe og repos i et 1 ½-plans hus
og 2-plans hus.
Store eller små typehuse tilpasset dine behov og ønsker
Der er mange fordele ved at bygge et hus med ét plan, og mange forskellige typer af familier kan trives i sådan et hus. Det er fx oplagt til familier, hvor en eller flere i husstanden er gangbesværede eller fysisk handikappede. Et plans længehuse
har jo i sagens natur ingen trapper, og det letter hverdagen for mange, der har svært ved at komme op og ned ad trappetrin. Derudover kan det også tilpasses yderligere til kørestole med fx bredere dørkarme.
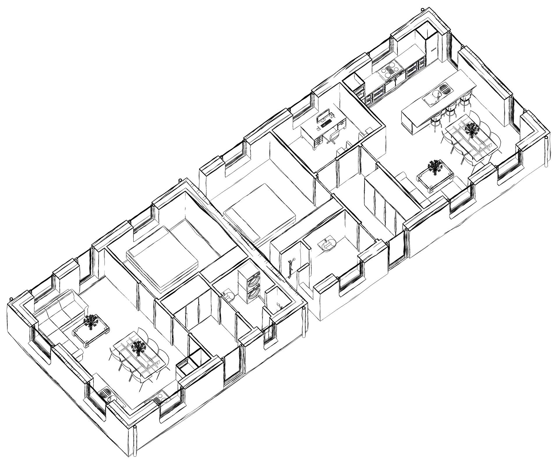
Derudover er 1-plans huset også en god løsning for børnefamilier. Det er muligt at lave en børneafdeling i huset, hvor værelserne ligger tæt – eventuelt i sammenhæng med et aktivitetsrum, hvor de kan boltre sig. Når de bliver ældre, kan aktivitetsrummet bruges til fx computerspil eller være et sted at hænge ud med vennerne. Samtidig er familien hele tiden tæt på hinanden, fordi rummene ikke er adskilt på forskellige etager. Det er derfor nemt at holde styr på, hvor familiemedlemmerne er, og hvad de laver.
Vi bygger arkitekttegnede huse til typehuspriser
Hos Jely Huse bygger vi aldrig to huse, der er ens. Vi har udviklet det individuelt arkitekttegnede typehus, der er et arkitekttegnet hus til typehusenes priser. Det vil sige, at vi har et fast udgangspunkt – fx arkitektforslagene på denne side – som vi efterfølgende tilpasser til netop dine behov, ønsker og krav til dit kommende hjem.
Læs mere om Jely Huses værdier og historie her.
Vi gør en dyd ud af, at du som bygherre er involveret i hele processen og har mulighed for at justere og ændre, selv når vi er gået i gang med at bygge. Du får udleveret en byggenøgle, og ved hjælp af den kan du altid besøge dit ufærdige hus, og se hvor langt vi er i processen. Opdager du, at noget ikke er som det skal være, kan vi stort set altid tilpasse det – så længe det kan lade sig gøre ingeniørmæssigt.
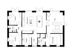
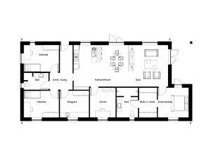
Arkitekt forslag 1/109 Længehus
Bruttoareal 109 m²
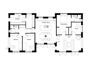
Arkitekt forslag 1/125 Forskudt vinkelhus
Bruttoareal 125 m²


















































