1-planshuse
Arkitekt forslag 1/162 Forskudt vinkelhus
Forslag
Plans Stueplan | Arkitekt forslag 1/109 Længehus
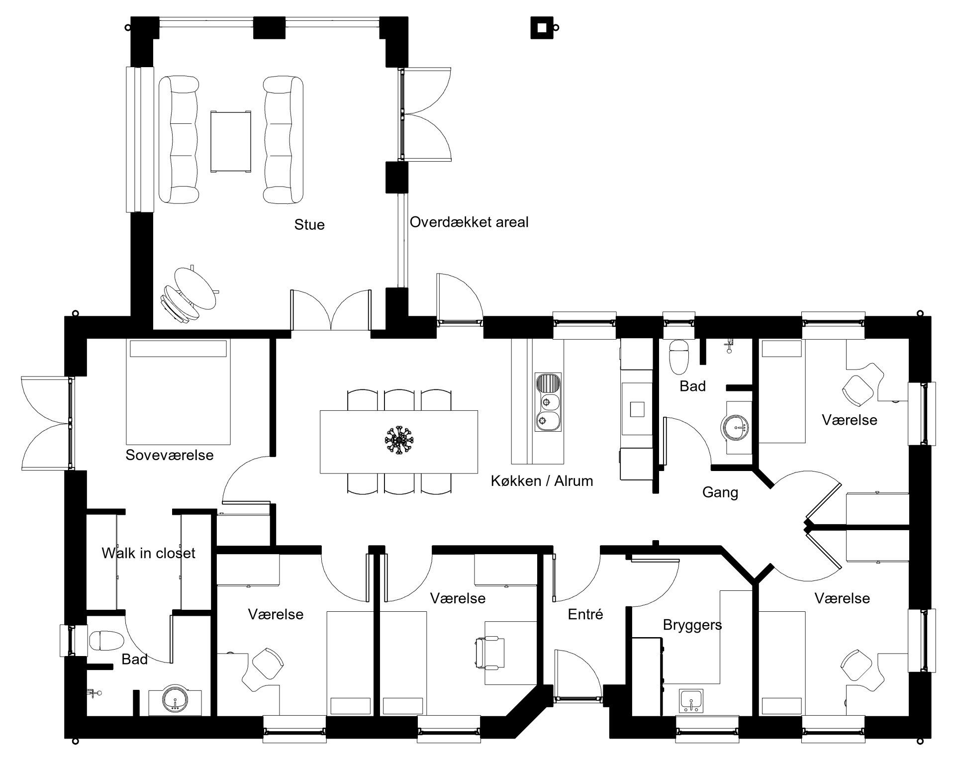
Stueplan | Arkitekt forslag 1/160 Forskudt vinkelhus
JELY er et familieejet arkitekt- og byggefirma med mere end 50 års erfaring.
JELY bygger ikke typehuse, men bygger individuelle, arkitekttegnede huse til konkurrencedygtige og faste priser – skræddersyet ud fra JERES egne ønsker og krav til indretning, materialer og konstruktioner m.v..
JELY har egne fastansatte arkitekter, som tegner jeres nye hus, så det præcis passer til jeres families behov og ønsker til en moderne og funktionsdygtig bolig i flot design.


